


Funktionen und Details



Gartenhaus aus Holz mit integriertem Schuppen aus massivem und langlebigem nordischem Fichtenholz. Das Gartenhaus verfügt über zwei getrennte Räume – einer mit einer Einzeltür, einer mit einer verglasten Doppeltür und einem Fenster. Sie können beide Räume zum Abstellen von Gartengeräten, Maschinen, Fahrrädern, Grill, etc. nutzen oder Sie nutzen den großen Raum als Werkstatt, für kreative Beschäftigungen oder zum Entspannen. Achtung! Dachpappe ist nicht im Lieferumfang enthalten! Modularo® ist eine moderne Lifestyle-Marke, die haltbare und qualitativ hochwertige Produkte aus solidem Holz und im modernen Design bietet, um Ihr Gartenleben noch reichhaltiger und angenehmer zu machen.
Produktspezifikationen
-
TürtypDouble hinged door
-
MaterialNordische Fichte (Picea Abies)
-
FarbeNaturbelassen
-
Dach-/Neigungswinkel (⁰)19
-
Wandplattendicke (mm)44
-
Seitenhöhe (m)2.11
-
ProduktnummerWC165580
-
Bodenplattendicke (mm)18
-
Dachplattendicke (mm)18
-
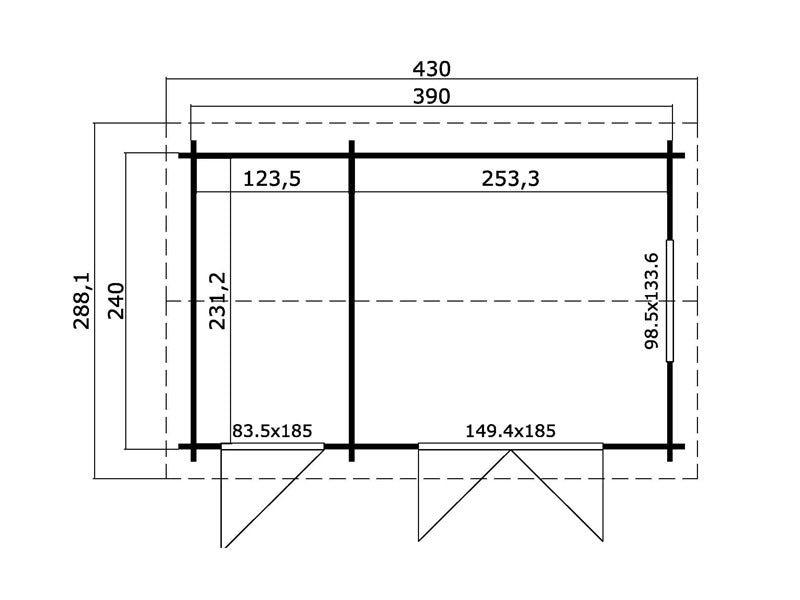
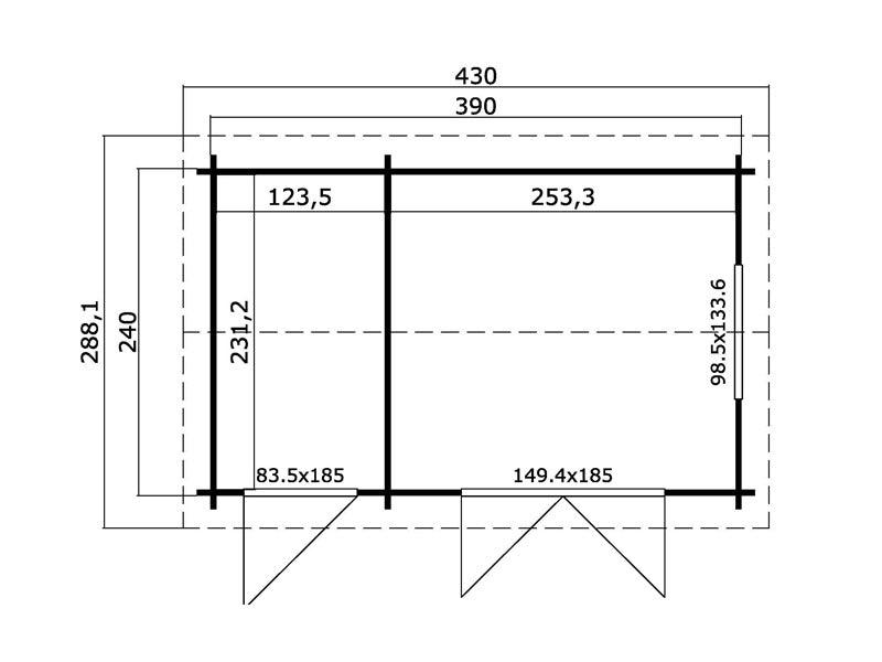
Außenlänge (m)2.88
-
Außenbreite (m)4.3
-
Dachüberstand (cm)20
-
Innenlänge (m)2.312
-
Innenbreite (m)3.768
-
Gewicht (kg)1010
-
Firsthöhe (m)2.51
-
Seitenplattendicke (mm)44
- Gartenhaus aus Holz mit zwei getrennten Räumen
- Ein Raum mit verglaster Doppeltür und Fenster
- Ein Raum mit Einzeltür
- Hergestellt aus langlebigem und nordischem Fichtenholz
- Holzboden inklusive
- Die Doppeltür bietet einfachen Zugang
- Fenster und Türen sorgen für viel Tageslicht im großen Raum
- Beide Türen sind abschließbar
- Doppeltür 149,4 x 185 cm
- Einzeltür 83,5 x 185 cm
- Fenster 98,5 x 133,6 cm
- Perfekt zum Aufbewahren von Gartengeräten und vielem mehr
- Kann als Werkstatt o.ä. genutzt werden
- Dachpappe NICHT im Lieferumfang enthalten
- Alle Einzelteile vormontiert
- Einfache Montage
- Holzlasur sollte nach der Montage aufgetragen werden
- Kleiner Raum 2,85 m²
- Großer Raum 6,1 m²
Elegantes Gartenhaus aus Holz mit zwei getrennten Räumen. Sie können beide Räume für die Aufbewahrung Ihrer Gartengeräte, Maschinen, Fahrräder, Grill und vieles mehr nutzen oder Sie nutzen lediglich den kleineren Raum als Schuppen und den großen Raum als Werkstatt, zum Entspannen, etc.. Die breite verglaste Doppeltür sorgt – zusammen mit dem großen Fenster an der Stirnwand – für viel Tageslicht im großen Raum. Der kleinere Raum verfügt über eine Einzeltür und kein Fenster. Beide Türen sind mit einem eingebauten Zylinderschloss abschließbar, um Ihnen eine sicher Lagerlösung zu bieten.
Das Gartenhaus aus Holz wird als vorgefertigter Bausatz geliefert. Wir empfehlen, dass Sie die Montage zu zweit durchführen, es sind jedoch keine speziellen Werkzeuge erforderlich. Folgen Sie einfach der ausführlichen Aufbauanleitung. Der Geräteschuppen ist aus Naturholz gefertigt, daher empfehlen wir, ihn nach dem Aufbau so schnell wie möglich mit einer hochwertiger Holzlasur zu behandeln. Wählen Sie eine Farbe nach Ihrem Geschmack oder verwenden Sie einen transparente Holzlasur , damit Sie sich dauerhaft an dem schönen Holz erfreuen können.
Modularo® ist eine moderne Lifestyle-Marke, die sich auf eine hohe Qualität, Komfort und Robustheit spezialisiert hat. Die Marke bietet Ihnen eine große Auswahl an langlebigen Holzprodukten, wie z. B. Gartenpavillons, Schuppen und Gartenhäuser, die Ihr Gartenleben langfristig noch besser und angenehmer machen. Die Marke überzeugt durch ein elegantes Design, Funktionalität und Platz zum Leben.
- Bei starkem Wind liegt es in Ihrer Verantwortung, das Zelt angemessen zu sichern und zu verhindern, dass es Materialien und Personen verletzt.
- Wenn es schneit, besteht die Gefahr, dass sich Schnee auf dem Dach Ihres Zeltes ansammelt. Schwerer Schnee kann dafür sorgen, dass das Zelt einstürzt. Es liegt in Ihrer Verantwortung, den Schnee von Dach Ihres Zeltes zu entfernen und Ihr Zelt vor Schäden zu bewahren.
- Bitte versichern Sie sich, dass Ihr Zelt vollständig trocken ist, bevor sie es abbauen und verpacken. Auf diese Weise vermeiden Sie Schimmel und Pilzbefall.
- Packen Sie Ihr Zelt nicht bei Temperaturen unter null Grad ein oder aus.
- Verwenden Sie kein offenes Feuer und keine Schweißausrüstung oder andere Zündquellen innerhalb oder außerhalb des Zeltes.
- Bitte beachten Sie, dass die Garantie von Dancover nur für die gewöhnliche Verwendung des Produkts in Übereinstimmung mit den schriftlichen Anweisungen in Ihrer Bedienungsanleitung gilt. Die Garantie deckt nicht die normale Abnutzung ab. Darüber hinaus deckt sie keine Schäden, Verschleiß, Defekte ab, die durch falschen Gebrauch, mangelhafte Wartung, Missbrauch, unerlaubte Modifikation oder der Nutzung unter schlechten Wetterbedingungen verursachten werden.
- Wir empfehlen Ihnen, zu prüfen, ob Ihr Zelt durch Ihre Hausratversicherung abgedeckt ist.
Bedienungsanleitung herunterladen
Gartenhaus aus Holz mit Schuppen Maardu 3,9x2,4x2,51m, 44mm, Natur
Funktionen und Details








