


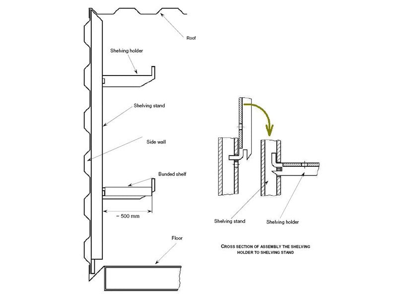
Bunded shelf with a 4 cm edge for catching leaking fluids. The shelf is part of our shelf system with shelving uprights and shelf brackets. This shelf is made of 1 mm thick galvanised steel. The shelf measure 280 x 52 x 4 cm. NB! Shelving uprights and shelf brackets must be ordered separately!
Product Specifications
-
MaterialSteel
-
Product NumberAC83002
-
Weight (kg)37.2
Shelf for our sturdy storage containersCan be mounted without the use of toolsBunded with 4 cm edge for catching spillageOnly compatible with the Orion-series containers.Bunded shelf for our sturdy storage containers and environmental storage containers. The bunded shelf has a 4 cm edge, which will catch any minor spillage from cans and containers stored on the shelf. The shelf is part of our sturdy and practical shelf system, which include shelves, shelving uprights, and shelf brackets. This bunded shelf is made of 1 mm thick galvanised steel with a folded edge. The shelf measures 280 x 52 x 4 cm.
In the case of strong wind, it is your responsibility to secure the tent adequately and prevent it from injuring materials and people.When it snows, a risk emerges that snow pile up on the roof of your tent. Heavy snow may cause the tent to collapse. It is your responsibility to remove snow from the roof of your tent and save your tent from damage.Please be sure that your tent is completely dry before you take it down and pack it up. Thus you avoid mould and mildew.Do not pack or unpack your tent at subzero temperatures.Do not use open fire, welding equipment or other sources of ignition, inside or close to the tent.Please note that the Dancover warranty applies only to the normal use of the product happening in accordance with the written instructions in your manual. The warranty does not cover normal wear and tear. Neither does it cover damage, defect, wear and tear caused by misuse, poor maintenance, abuse, unauthorized modification or exposure to bad weather conditions.We recommend you to check whether your tent is covered by your home contents insurance.
Bunded shelf for container Orion 280 cm, 1 pcs.
562,87 lei RONincl. VAT

Bunded shelf for container Orion 280 cm, 1 pcs.
Sale price
562,87 lei RON




