





Omadused ja üksikasjad



Puidust aiakuur 14 mm FSC põhjamaisest kuusest ja suure topeltuksega tagab lihtsa juurdepääsu. Aiakuur on ideaalne teie aiatööriistade ja muu varustuse kenasti organiseerimiseks ja varjuliselt hoidmiseks. Kaasaegne paneeldisain võimaldab aiakuuri lihtsalt igale poole paigaldada. Naturaalne puit nõuab töötlemist puidukaitsevahendiga kohe pärast aiakuuri kokku panemist. Palun pange tähele, et aiakuur tuleb 16 mm niiskuskindlate MFP P5 põrandapaneelidega. Disainitud ja toodetud EL-is. NB! Katusekatet EI OLE kaasas. Soovitame teil tutvuda meie laia valik erinevat tüüpi katusekatetega oma kohalikus ehituskeskuses või tööriistapoes.
Toote üksikasjad
-
MaterjalPõhjala kuusk (Picea Abies)
-
VärvNaturaalne
-
Seinaplaadi paksus (mm)14
-
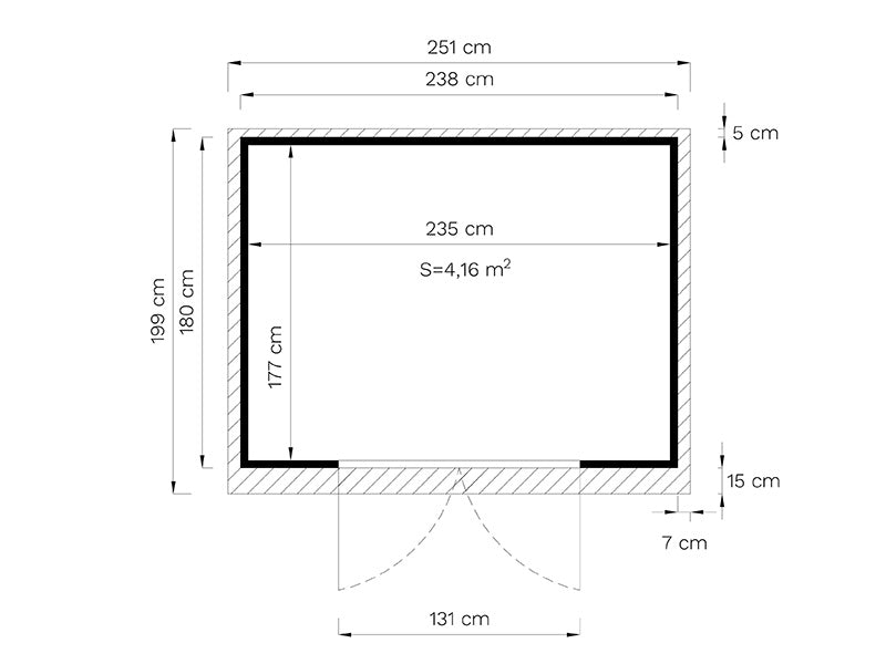
Külje kõrgus (m)1.68
-
TootenumberWC201110
-
Katuseplaadi paksus (mm)12
-
Välimine pikkus (m)1.99
-
Välimine laius (m)2.51
-
Sisemine pikkus (m)1.77
-
Sisemine laius (m)2.35
-
Lumekoormus (kg/m²)85
-
Kaal (kg)2
-
Sügavus (m)0
-
Harja kõrgus (m)2.1
-
Külgplaadi paksus (mm)14
-
Katuseplaadi paksus (mm)12
Puidust aiakuur, Bertilo Amrum 3, 2,38x1,8x2,1m, 4,28m²
Omadused ja üksikasjad








