




Savybės ir detalės


Dvigubas medinis garažas dviem jūsų automobiliams ir ne tik. Dvigubas garažas tobulai tinka jūsų automobilio, motociklo ir kt. Atskirame kambaryje galite susidėti sodo įrankius ir kitus daiktus. Dideli įvažiavimai suteiks lengvą patekimą jūsų automobiliui ir ne tik. Nuožulnus stogas yra modernaus dizaino dalis, o trys langai užtikrins, kad garaže dienos metu būtų šviesu. Atkreipkite dėmesį - stogo danga nėra pridedama! Modularo® yra modernus laisvalaikio prekinis ženklas suteikiantis aukštos kokybės produktus iš tvirtos medienos ir su moderniu dizainu, padarančiu jūsų gyvenimą sode turtingesniu ir turiningesniu.
Prekės specifikacijos
-
Durų tipasSingle hinged door
-
MedžiagaŠiaurietiškoji eglė (Picea Abies)
-
SpalvaTamsi pilka
-
Stogo/nuolydžio kampas (⁰)13.9
-
Sienos plokštės storis (mm)44
-
Šoninis aukštis (m)2.28
-
Produkto numerisWC165111
-
Stogo plokštės storis (mm)18
-
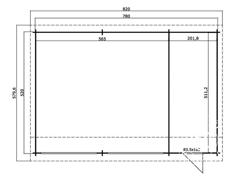
Išorinis ilgis (m)5.8
-
Išorinis plotis (m)8.2
-
Stogo iškyša (cm)20
-
Vidinis ilgis (m)5.112
-
Vidinis plotis (m)7.668
-
Svoris (kg)2381
-
Kraigo aukštis (m)3.21
-
Šoninės plokštės storis (mm)44
- Atviras dvivietis garažas / stoginė be durų ir vartų
- Kieta 44 mm šiaurietiška mediena
- Rakinamos sandėliuko durys
- 3 langai šviesai garaže ir sandėliuke
- Sandėliuko durys 83,5 x 185 cm
- 3 x langai 150 x 41 cm
- Stogo dengimo medžiaga nepridedama!
- Visos dalys paruoštos surinkimui
- Paprastas surinkimas su aiškiomis instrukcijomis
- Surinkimui reikia bent 2 asmenų
- 39,42 m²
Turėdami didelį, dvigubą garažą iš Šiaurietiškos medienos suteiksite sau uždengtą vietą, kur galėsite satyti automobilius ir kitas mašinas. Įtaisytas, tačiau ne atskiras sandėliukas, gali būti naudojamas įvairiausių daiktų, kuriuos norite laikyti šalia savęs laikymui savo sode – sodo įrankiams, žoliapjovei, kepsninei, žaislams, pagalvėmis terasai ir kt. Sandėliuko durys – užrakinamos. Du dideli įvažiavimai leis nesunkiai pastatyti jūsų automobilius ir ne tik, tad jie bus uždengti ir apsaugoti nuo išorės poveikio.
Aukštos kokybės medinis garažas iš kietos 44 mm atrinktos šiaurietiškos medienos. Kadangi medienai leidžiama augti atšiauriuose ir šaltuose Europos regionuose, jūsų garažas bus pagamintas iš labai stabilios, tvirtos ir patvarios medžiagos, kuri tarnaus ilgai, ypatingai, jeigu tinkamai ja pasirūpinsite. Medinis garažas turi klasikinį stogą, tad ant jo nesikaups vanduo. Atkreipkite dėmesį - stogo dengimo medžiaga nėra pridedama. 3 langai priekyje suteikia pakankamai vietos garaže ir sandėliuke dienos metu, tad visuomet lengvai rasite tai ko ieškote.
Medinis garažas pristatomas kaip iš anksto surinkimui paruoštas rinkinys. Rekomenduojame jums šiam darbui būti dviese, tačiau jokių specialių įrankių tam nereikės. Tereikės sekti išsamias surinkimo instrukcijas. Jeigu pasirinksite garažą iš natūralios medienos, rekomenduojame jums apdoroti jį kokia nors medienos impregnavimo medžiaga. Turite klausimų apie mūsų medinius garažus ar kitus produktus? Susisiekite su mūsų ekspertais telefonu, el. paštu arba susirašinėjimo įrankiu svetainėje.
Modularo® tai modernaus gyvenimo būdo prekinis ženklas, kuris susitelkia ties aukšta kokybe patvarumu ir komfortu. Prekinis ženklas suteiks jums platų, ilgai veikiančių medinių produktų pasirinkimą, pavyzdžiui sandėliukus, medines pavėsines, medinius namelius ir kitus statinius, su kuriais galėsite dar labiau pagerinti gyvenimą savo sode ir naudojant ilgą laiką. Prekinis ženklas suteiks jums elegantišką dizainą, funkcionalumą ir vietos gyvenimui.
- Esant stipriam vėjui, jūs prisiimate atsakomybę tinkamai pritvirtinti palapinę, kad apsaugotumėte žmones nuo sužeidimų ir aplink esančias medžiagas nuo pažeidimų.
- Smarkiai sningant yra galimybė, jog ant jūsų palapinės stogo susikaups sniegas, nuo kurio svorio palapinė gali sugriūti. Esate atsakingi už šio sniego pašalinimą.
- Prieš supakuodami palapinę, įsitikinkite, jog ji yra visiškai sausa. Taip išvengsite drėgmės ir pelėsių.
- Esant žemesnei nei 0 laipsnių temperatūrai palapinės supakuoti nepatariame.
- Palapinėje ar šalia jos draudžiama naudoti atvirą ugnį, suvirinimo įrankius ar kitus ugnies šaltinius.
- Prašome įsidėmėti, jog Dancover garantija yra taikoma tik tuo atveju, jei palapinė yra naudojama įprastai, atsižvelgiant į instrukcijas vadove. Garantija netaikoma nusidėvėjimui, kaip ir nuostoliams bei defektams, įvykusiems dėl netinkamo naudojimo, prastos priežiūros, piktnaudžiavimo, neleistinų modifikacijų ar blogų oro sąlygų.
- Patariame jums įsitikinti, ar jūsų palapinė yra įtraukta į jūsų namų turinio draudimą.
Atsisiųsti vadovą
Dvigubas medinis garažas, pastogė automobiliui Vaasa, 7,8x5,2x3,21m, 44mm, Tamsiai pilka
Savybės ir detalės







